Charmante Etagenwohnung in Grimmen zu vermieten
18507 Grimmen, Etagenwohnung zur Miete
Kontaktdaten
-
NameRamona Hess
-
FirmaWohnungsgenossenschaft Grimmen e.G.
-
AdresseKurt-Tucholsky-Straße 19
18507 Grimmen -
E-Mail Zentrale
-
Tel. Zentrale
Objektdaten
-
Objekt ID6/5/401
-
ObjekttypenEtagenwohnung, Wohnung
-
Adresse18507 Grimmen
Mecklenburg-Vorpommern -
Etage4
-
Wohnungsnummerverfügbar/buchbar
-
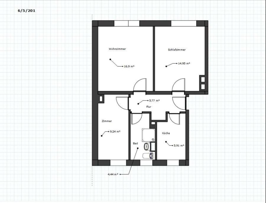
Wohnfläche ca.59,55 m²
-
Zimmer2,5
-
Balkone1
-
HeizungsartFernwärme
-
Baujahr1963
-
Zustandgepflegt
-
AusstattungStandard
-
HeizungsartFernwärme
-
Eintrittsgeld25
-
StatusIn Vermarktung
-
Area Unitsqm
-
Genossenschaftsanteile1085 €
-
Kaltmiete387,08 EUR
-
Nebenkosten70,30 EUR
-
Heizkosten93,00 EUR
Ausstattung / Merkmale
- ✓ Balkon
- ✓ Dusche
- ✓ Fliesenboden
- ✓ Keller
- ✓ Parkettboden
- ✓ Tageslichtbad
Energieausweis
-
EnergieausweistypVerbrauchsausweis
-
Ausstellungsdatum03.04.2019
-
Gültig bis02.04.2029
-
GebäudeartWohngebäude
-
Baujahr1963
-
PrimärenergieträgerFernwärme
-
Endenergieverbrauch88,00 kWh/(m²·a)
-
Warmwasser enthaltenja
-
EnergieeffizienzklasseC
Objektbeschreibung
Beschreibung
Diese charmante Etagenwohnung bietet eine ideale Wohnmöglichkeit für Mieter, die Komfort und Funktionalität schätzen. Mit einer Wohnfläche von 59,55 m² und 2,5 Zimmern ist diese Immobilie perfekt für Singles, Paare oder kleine Familien.
Die Wohnung befindet sich im 3. Obergeschoss eines gepflegten Mehrfamilienhauses und überzeugt durch ihre durchdachte Raumaufteilung. Der Bodenbelag besteht aus einer Kombination von Fliesen und Parkett, was für eine angenehme Wohnatmosphäre sorgt.
Zur Ausstattung gehören:
- Wohnzimmer und Schlafzimmer mit Parkettboden
- Küche Vinylboden und Badezimmer mit Fliesen
- Keller zur zusätzlichen Stauraumnutzung
Der Standort in Grimmen bietet eine hervorragende Infrastruktur mit guten Einkaufsmöglichkeiten, Schulen und öffentlichen Verkehrsmitteln in unmittelbarer Nähe. Die Beheizung erfolgt über Fernwärme, was für eine effiziente und kostengünstige Wärmeversorgung sorgt.
Lage
Die dargestellte Position der Immobilie ist nur eine ungefähre Angabe.








