Nur noch wenige verfügbar: Wir bauen um und gestalten 2- und 3raum Wohnungen frisch und neu
18507 Grimmen, Wohnung zur Miete
Kontaktdaten
-
NameFrau Ramona Hess
-
FirmaWohnungsgenossenschaft Grimmen e.G.
-
AdresseKurt-Tucholsky-Straße 19
18507 Grimmen -
E-Mail Zentrale
-
Tel. Zentrale
Objektdaten
-
Objekt ID30/49
-
ObjekttypWohnung
-
Adresse18507 Grimmen
Mecklenburg-Vorpommern -
Wohnungsnummervorhanden/Buchbar
-
Wohnfläche ca.50 m²
-
Zimmer2
-
Balkone1
-
HeizungsartFernwärme
-
Baujahr1965
-
Zustandvollsaniert
-
Ausstattunggehoben
-
HeizungsartFernwärme
-
StatusIn Vermarktung
-
Area Unitsqm
-
Kaltmiete425,00 EUR
Ausstattung / Merkmale
- ✓ Balkon
- ✓ Keller
Energieausweis
-
EnergieausweistypVerbrauchsausweis
-
Ausstellungsdatum01.04.2019
-
Gültig bis01.04.2029
-
GebäudeartWohngebäude
-
Baujahr1965
-
PrimärenergieträgerFernwärme
-
Endenergieverbrauch82,00 kWh/(m²·a)
-
EnergieeffizienzklasseC
Objektbeschreibung
Beschreibung
Freuen Sie sich auf moderne Wohnqualität im Herzen von Grimmen: Derzeit entstehen im Rahmen einer aufwendigen Kernsanierung insgesamt 10 hochwertig ausgestattete Wohnungen, die ab August 2026 bezugsfertig sein werden.
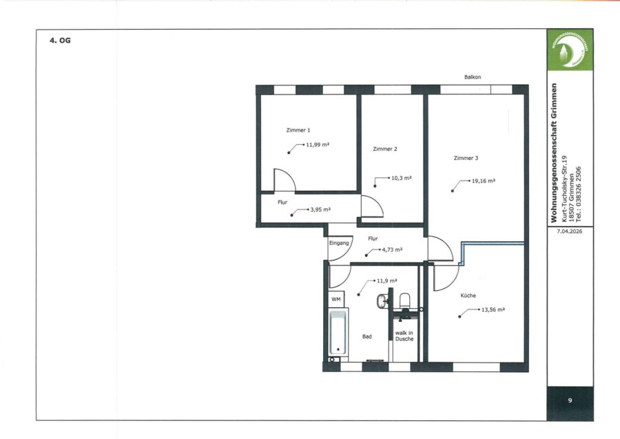
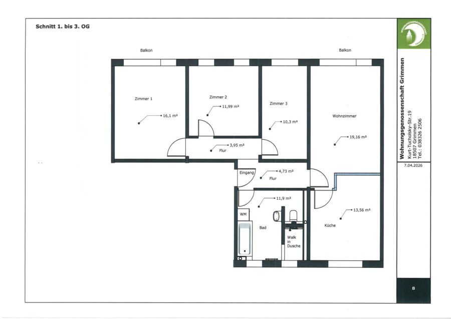
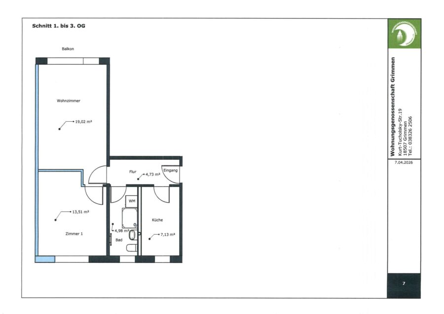
Zur Auswahl stehen geräumige 2- und 4-Raum-Wohnungen, die mit durchdachten Grundrissen und einer gehobenen Ausstattung überzeugen. Besondere Highlights sind das großzügige Dusch- und Wannenbad sowie eine großzügig geplante Küche, die keine Wünsche offenlässt. Jede Wohnung verfügt zudem über einen oder zwei eigene Balkone, sowie einen separaten Kellerraum für zusätzlichen Stauraum.
Als Erstbezug nach Sanierung profitieren Sie von zeitgemäßer Bausubstanz, frischer Haustechnik und einem modernen Wohnambiente auf aktuellem Standard.
Die monatliche Kaltmiete bewegt sich je nach Wohnungsgröße und Zuschnitt zwischen 425 und 825 Euro.
Sichern Sie sich jetzt Ihre Wunscheinheit. Wir freuen uns auf Ihre Anfrage.
Lage
Die dargestellte Position der Immobilie ist nur eine ungefähre Angabe.












